Järvesalu tee 2 maja on valmis ning maja müügihind on 1 190 000€
Kuues eramu Järvesalu elurajoonis, Peetri alevikus
Arhitekt Pille Nageli poolt projekteeritud A-energiaklassi eramu lahenduses on arvestatud krundi orientatsiooniga ilmakaarte suhtes. Elamu on paigutatud kinnistu idaossa ning sissepääsud on kavandatud Kodu tee poolt.
Elamu on kahekorruseline ning eluruumide maht joondub Järvesalu tee hoonetega samasuunaliselt. Peamised fassaadid, kuhu avanevad tubade aknad, on suunaga lõunasse ja läände.
Üksikelamu on selgelt rõhutatud horisontaalse vormiga, mida elavdab kahe materjali kasutus – hele krohv ja tumedad kiltkiviplaadid. Suurematest elutoa akendest sissepaistva ja ruume liigselt kütva suvepäikese eest kaitsevad väljaulatuvad karniisid ja rõdu.






Tehnilised näitajad
Katastritunnus 65301:001:5291
Krundi pind 1506 m²
Ehitisealune pind 253 m²
Korruseid 2
Tubade arv 6
Suletud netopind 269,4 m²
Garaaži osa 49,4 m²
Eluruumide pind 220,0 m²
Köetav pind 269,4 m²
Rõdu pind 24,8 m²
Terrasside pind 40,0 m²
Suletud brutopind 332 m²
Ehitusinfo
Intelligentne pilk tulevikku
Eramu on projekteeritud kahekorruselise hoonena, millele liitub madalam garaažiosa. Eramu on innovatiivne ja kaasaegne, kus esiplaanile on seatud energiasäästlikkus koos tervisliku elukeskkonna ja sisekliimaga.


Kliki ikoonile ja vaata täpsemat infot!




Eramu planeering
Plaaniline lahendus on loogiline ja funktsionaalne.
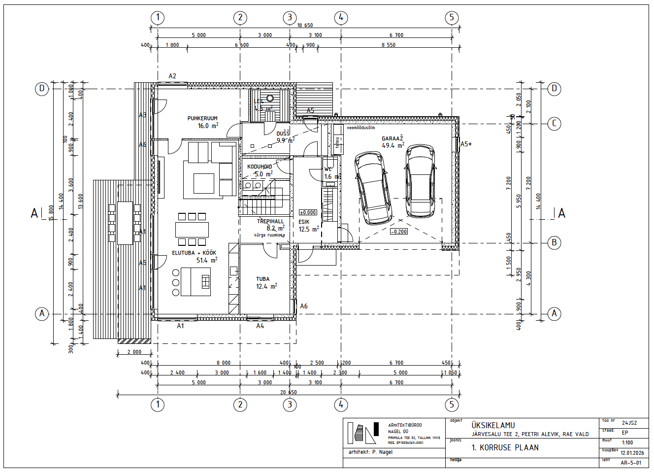
Esimesel korrusel on elutuba koos avatud köögiga (51,4 m²), trepihall (8,2 m²) koos esiku garderoobiosaga (12,5 m²), wc ( 1,6 m²). Esimesel korrusel asub ka koduhoiuruum (5,0 m²) ja magamistuba/kabinett (12,4 m²).
Saunaga puhkeosas on saun (4,5 m²), (pesuruum 9,9 m²) ja puhkeruum (16,0 m²).
Nii elutoast kui ka saunablokist pääseb 40 m² suurusele lõuna ja lääne suunal avanevale terrassile. Lisaks on saunablokist pääs eraldi asetsevale terrassile.
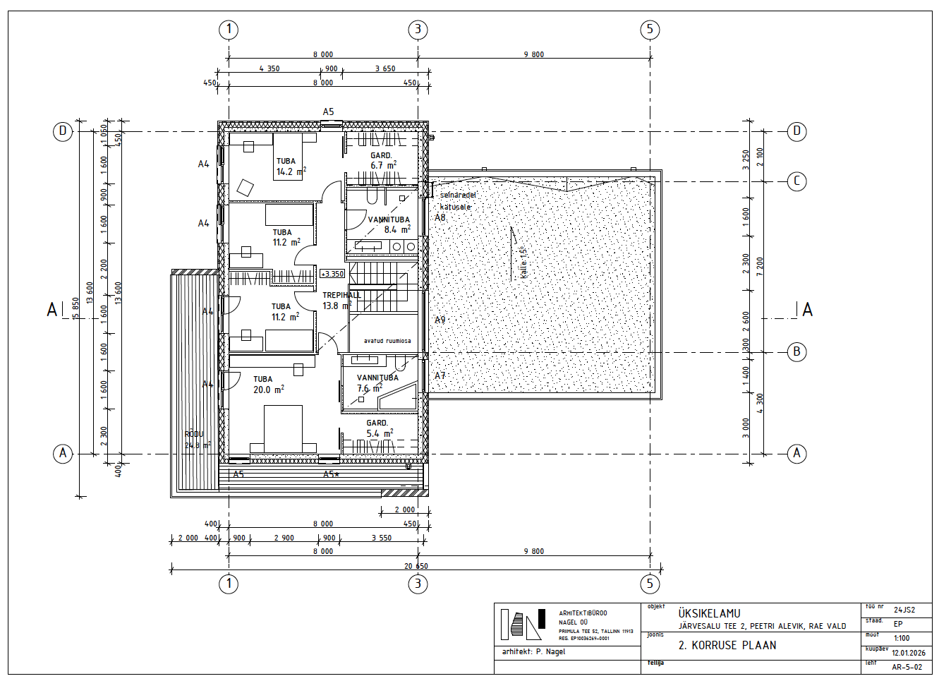
Teisel korrusel on 4 magamistuba (11,2 m², 11,2 m², 14,2 m² ja 20,0 m²). Suures (20,0 m²) magamistoas on lisaks eraldi garderoobiosa (5,4 m²) ning vannituba (7,69 m²). Samuti on eraldi garderoobiosa 14,2 m² suurusel magamistoal (6,7 m²). Korrusel on lisaks veel üks vannituba (8,4 m²). Lõunapoolsest suurest magamistoast ja 11,2 m² suurusest magamistoast on pääs rõdule ( 24,8 m²).
Ermule on liigendatud garaaž. Köetav garaaž on mõeldud parkimiseks kahele autole ning on pindalaga 49,4 m². Lisaparkimiskohad on hoovis. Hoone tehnosüsteemid on paigutatud garaaži.
Kõikides ruumides on põrandaküte ning kõikides tubades on võimalik temperatuuri eraldi reguleerida.
Eramu on ümbritsetud aiaga, sissesõit puldiga avanevast väravast. Kinnistu on osaliselt ümbritsetud vertikaalse kivi- ja puitaiaga, osaliselt võrkpaneelaed. Valvesignalisatsiooni seadmed on tootjalt Paradox, majale on paigaldatud Hikvision videokaamerad ning videofonolukusüsteem.
Hoone asetseb kinnistul nii, et siseõu ja terrass on päikesepoolsed. Kinnistu on haljastatud. Maja ümbritsevad tänavad on asfalteeritud ja valgustatud, rajatud on sadeveekanalisatsioon.


Eramu on innovatiivne ja kaasaegne, kus esiplaanile on seatud energiasäästlikkus koos tervisliku elukeskkonna ja sisekliimaga.
Keskkonda ja loodusressursse säästev projekt on suunatud neid väärtusi ja hoone tervislikku sisekliimat hindavale kliendile.
Madala energiatarbimisega, A klassi hoone seab ehitusele kõrgendatud nõuded ja kvaliteedinormid.
Energiamärgis on hoone kvaliteedi näitaja, sest kõrgeim klass selles vallas annab tunnistust kvaliteetsest ehitusest. Tervise seisukohast lähtudes on oluline, et hoone oleks kvaliteetselt ja energiatõhususe normidele vastavalt ehitatud, sest lisaks energia säästmisele on oluline ka hea sisekliima, mis tähendab normikohast õhuvahetust, õhuniiskust, ühtset temperatuuri ja külmasildade puudumist.
Järvesalu tee 2 eramus on vertikaalne maaküte, soojustagastusega ventilatsioon, konditsioneer ning katusele on paigaldatud päikesepaneelid.





















































